Home
Story
Projects
Commercial & Industrial
International Projects
Upcoming
Planning
Educational & Interiors
Civic & Religious
Residential
Contact
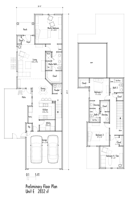
STONEOAK TOWNHOMES
Neighborhood Master Plan
San Antonio, Tx