Home
Story
Projects
Commercial & Industrial
International Projects
Upcoming
Planning
Educational & Interiors
Civic & Religious
Residential
Contact
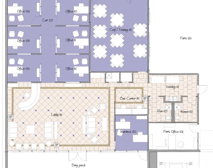
GUNN AUTO
Retrofit to Existing Office Building
San Antonio, Tx